Руководство по монтажу мягкой кровли
 
 Ищете идеальную крышу? Мягкая кровля – это ваш выбор! Защитите свой дом от любой непогоды, придайте ему завершенный, гармоничный вид. Доступность, надёжность и долговечность гарантированы.
 
 Ищете идеальную крышу? Мягкая кровля – это ваш выбор! Защитите свой дом от любой непогоды, придайте ему завершенный, гармоничный вид. Доступность, надёжность и долговечность гарантированы.
 
 Узнайте, как правильно выполнить расчет площади кровли для вашего дома. Избегайте ошибок, экономьте бюджет и стройте крышу, которая прослужит десятилетия. Ваш комфорт начинается с точного планирования!
 
 Мечтаете о долговечной крыше? Узнайте, как легко и выгодно выполнить укладку шифера своими руками! Проверенная временем надежность и доступность.
 
 Мечтаете о красивой и прочной четырехскатной крыше? Узнайте, как избежать ошибок при расчетах и строительстве. Наши советы помогут возвести надежную кровлю без переплат!
 
 Ломаете голову, какую кровлю выбрать для односкатной крыши? Забудьте о головной боли! Наши советы помогут найти идеальный вариант, сочетающий надежность, стиль и экономию. Узнайте все про кровлю!
 
 Муки выбора кровли для двускатной крыши? Разберем лучшие материалы, чтобы ваш дом был крепостью! Советы, секреты и немного магии строительства. ✨
 
 Узнайте, как формируется цена на кровлю крыши! От материалов до монтажа – разберем все факторы, влияющие на стоимость кровли крыши и поможем сэкономить!
 
 Мучаетесь выбором кровли? Разберем плюсы и минусы разных материалов, чтобы ваша крыша была самой надежной и красивой! Узнайте, какая кровля лучше именно для вас!
 
 Ищешь надежную и стильную крышу для гаража? Мягкая кровля – идеальное решение! Легкий монтаж, долговечность и защита от непогоды. Выбирай мягкую кровлю!
 
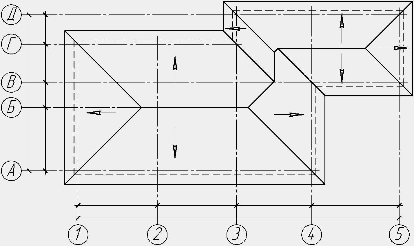
 Кровля и крыши чертеж – это не просто набор линий и размеров, а детальное отображение инженерной мысли, воплощенное в графической форме. Он является основой для строительства прочной и надежной защиты